| 所在: | 長野県佐久郡 |
| 竣工: | 1952年(改修竣工:2015年) |
| 構造: | 木造2階建(一部浅間石積み) |
| 設計: | 吉村順三(改修設計:白井克典設計事務所) |
| 施工: | 第一建設 |
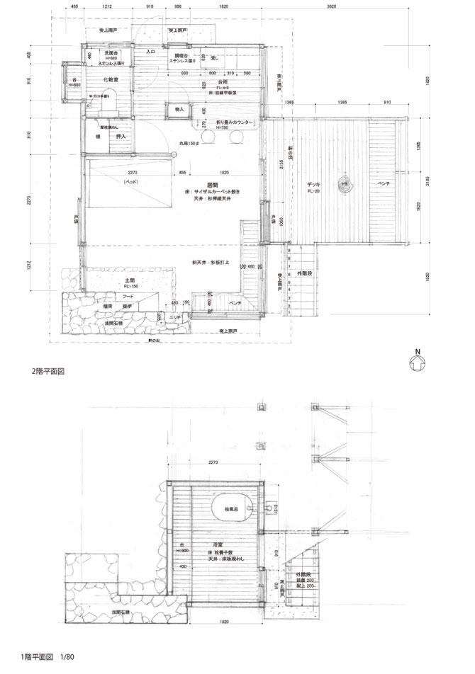
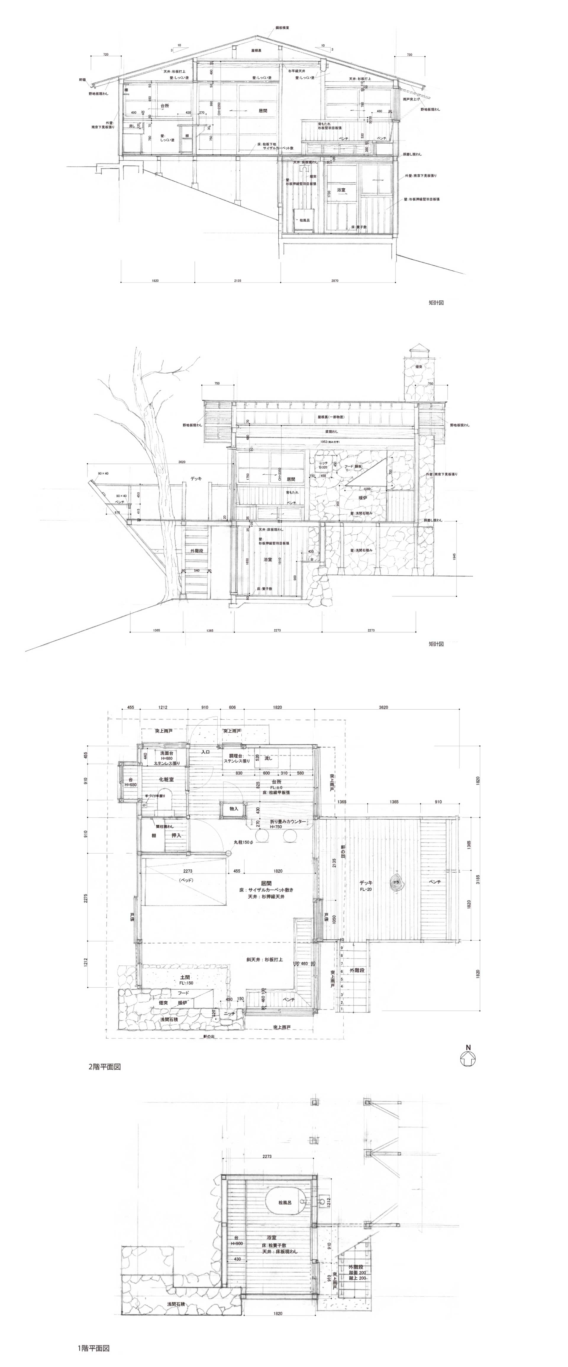
| 延床面積: | 38.34㎡(1階:6.89㎡ / 2階:31.45㎡) |
| 敷地面積: | 約9,900㎡ |
| 竣工時の用途: | 別荘 |
写真:©野秋達也

写真:©野秋達也
この「小さな山荘」の改修は、私と長年にわたり交流があり、数多くの建築と関わったクライアントが、2014年にこの土地に魅せられて取得したことから始まった。この敷地は、旧軽井沢の中でも最も古い由緒ある別荘地で、昭和初期につくられた石畳の小道の坂が唯一残る。山荘はこの小道坂を登り切ったところに位置し、山間にありながら湿度も高くなく日当りも良い。遠くの浅間山まで見通すことができ、ほどよく起伏の変化した土地に建っている。
現在は軽井沢の文化遺産に登録されて「旧村田別荘」と命名されているが、これは建築家の村田政真氏が吉村順三氏に設計を依頼して建てたとされているためである。当初の「鍵富邸」という名前は、村田氏の夫人で著名な園芸家であった村田ユリ氏の旧姓が鍵富であったことに由来すると思われる。
これまではこの山荘の竣工年や図面などの資料がなく不明とされてきたが、1952年に竣工していたことが判明し、吉村順三氏の初期の貴重な作品であることから、改修については原型をそのまま正確に再生させつつ、保全のための補強、使用出来る最低限の設備の補修することにした。主に外部廻りの仕上げ剤の取り替えや床下の骨組のやりかえなどであったが、最もこの建築の特徴でもある楢の木を囲い込んだ広いデッキは、原型を辛うじてとどめてはいるものの朽ちてしまって修理が不可能であったため、原型のまま完全な形で復元した。
一方、もう一つの特徴である暖炉廻りの浅間石の組積は破損等全くなく健在であり、この部分を取りあうディティールも破綻したところは見当たらず、木の構造部分も床下の骨組みをやり替えた程度でそれ以外は手直しする必要性はなかった。今回改修するまでの62年もの間、この小さな建物には基礎もなく浅間石の束石だけで支えていただけあるが、地面の凍害などの影響も受けずに基本的な部分はしっかりと残っていた。また、朽ち果ててしまった母屋の状況に対して、この小さな建物が長年放置された状態であっても耐えることができたのは、この建築がシンプルで明快な骨格を持つ建築であり、軽井沢の特性を熟知した吉村氏の設計だからこそである。
この建物は離れ家として建てられた。2階部分が主な生活の場で、居間の部分を含んだ 9.5坪のシンプルな空間があり、斜面の下部の1階は2坪の浴室があるのみで、計11坪のコンパクトな山荘であるが、13畳の居間から外部に広がるデッキは、7.5畳もあり、デッキの先端に跳ね出された部分には寝そべることのできる大きなベンチがある。居間の奥の部分には当初 ベッドが置かれていて、その部分には竿縁天井が張られている。ベッドの位置から落ち着いた天井があり、 外には大きな木の貫通したデッキを通して見える森の景色は、ツリーハウスにいる感覚である。
南東のコーナー部分には暖炉を前にL字にベンチを造り付け、浅間石を積んだ暖炉と一体化した壁が落ち着いた団欒の場となっている。台所は東側に位置した折り畳みカウンターのあるオープンキッチンで、朝の木漏れ日が入り気持ちよく朝食が楽しめる。ステンレスを張った流し台やカウンターなどはすべて造作でつくられている。化粧時も当時のままで、洗面所を兼ねた丁度良い広さがあり窓から眺める森の景色も抜群である。
1階へは2階のデッキから外階段を下りて行く。そこには板張りの壁の浴室があり、浴槽は当時のままのヒノキ風呂で現在も使うことができる。外階段を下りて落ち着いた風呂に入り、湯上がりに森に跳ね出したベンチで涼むのも格別気持ちの良いものである。
この建築に玄関はなく廊下もないワンルームである。9.5坪と小さな空間であるが全く窮屈さが感じられずむしろ外部の景色に抜けて広さを逆に感じる。統一された腰窓の高さや低めに抑えられた造作家具、全く無駄のないつくり、長く持ちこたえたシンプルで確かなディティール、浅間石の暖炉の煙突を組み込んだ組積の仕方、尺間の規則的な構成しつつあえて少しだけずらすところなど、この建築から多くを学んだ。何よりも軽井沢の自然と暮らしをこれほどまでに小さな空間で満喫できる仕掛けが1952年に出来ていたことは驚異的である。
改めて建物は最小限に小さく 空間は最大限に広くあるべきであることが最も重要だということを再認識した。
白井克典(建築家)
『住宅建築』2023年4月号より

写真:©野秋達也


『住宅建築』2023年4月号より