-
所在神奈川県川崎市
-
竣工1972年(昭和47年)
-
設計原広司
-
構造鉄筋コンクリート造
-
施工遠藤建設
-
延床面積245.29㎡(1階 111.60㎡ / 2階 133.69㎡)
-
敷地面積706.89㎡
-
竣工時の用途住宅・アトリエ
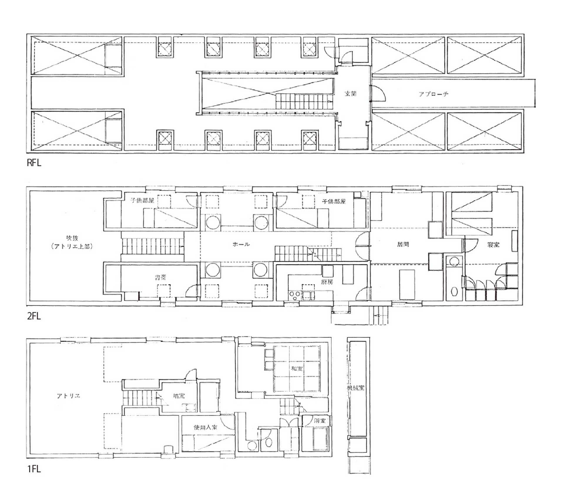
グラフィック・デザイナーの粟津潔の家である。この住居は,やがて 10年間にわたって,世界の集落を調査しながらつくることになった一連の<反射性住居>の原型となった。原邸,工藤山荘,倉垣邸などは,この粟津邸が原型となっており,相互に同型性が指摘できる。この形式は「夢舞台」になると,変形が大きくなり,もはや同型性が成立していない。有孔体からの推移をみると,有孔体の孔が建物の被覆上にあけられた 2次元的な孔であるのに対して,空間的な孔つまり 3次元の孔を住居空間全体に表出しようとした。
反射性住居の特性は次の通りである。
(1)細長い長方形(短冊状図形)を室内領域の床とする。自然地形が斜面なら,流線の方向に長軸を合せ,地形に合せて床面を細分する。また,アプローチは,地形の高い位置にとる。
(2)長軸を対称軸と設定し,壁,天井等を対称形に配置して,中央部に<内核>と呼ばれる領域をつくる。
(3)<内核>は,住居内の公共的な領域とし,スカイライトから光を入れる。
(4)<内核>の壁や天井は,白色として自然の変化を映し出すようにする。また,<内核>の残響時間を,やや長めにとる。
(5)外壁面は,庭や樹木等に対してのみ開かれた比較的閉鎖性の高い面とし,空気は換気塔の原理で垂直に動くように計画する。
このような住居の形式は,過密化してきた日本の都市環境に合せて,伝統的な開かれた住居に対して,閉ざされた住居形式として準備された。
粟津邸は,設計当初は自然環境の中にあったが,周辺はすぐさま樹木等がなくなることが予想されていたので,こうした住居形式が考えられた。<内核>は,都市の中の小さな中心であり,都市の中心に従属するのではなく,自立的な住居として成立すべく構想された。地形に合せて高い位置からアプローチし,低い方向に空間が広がってゆく<下向>の概念が設計上の重要な指針であった。この住居形式は,集落調査の開始前につくられ,粟津邸の施工中に第1回の調査が行われた。この住居形式が砂漠の住居に類似していることを知り,以後建てられた住居には,部分的に砂漠の住居の原理を参照してもいる。
粟津邸は今、再誕生=REBORNしました。それは1972年完成当時の姿にほぼ戻されたのです。だれもいないアトリエに立つと、変化する光と影、音の動き、その美しいアウラ、空間力に改めて圧倒されます。
粟津潔は2009年に亡くなるまで、代表作を含む無数の作品を原広司による粟津邸と共に作ってきました。それらの多くは現在金沢21世紀美術館のコレクションになっています。1955年「海を返せ」でデビューした粟津潔は、グラフィック・デザインという枠から飛び出し、あらゆる表現分野に挑んできました。彼は、自由というあえて険しい荒野に挑んだのです。
「人間には「出会い」ということがあります。誰かと誰かが出会う事実によって、何か今までになかった世界がつくられます。お互いが未知なるものを秘めながら、必然的であろうと偶然であろうと、そこから新しい出来事が始まります。」 粟津潔
原広司と粟津潔は、60年代半に出会いました。粟津邸は、この二つの特別な感性、才能の共鳴により完成したと言えます。世界には立派とされる建築が多くあります。しかし、たとえそれがどんな建物であっても、そこで今何が行われているかが問題だと思います。つまりそれは、その場にどんな魂が宿っているかということ。
「百年たったら帰っておいで 百年たてばその意味わかる」
粟津潔の友人だった寺山修司がのこした言葉です。100年にはまだ遠いですが、50年という時が流れました。この家に一人いるとこの言葉を自然に思い出します。
この度、粟津邸を公開します。今はっきりとわかりました。粟津邸は原広司による傑作中の傑作です。建築デザイン関係者だけではなく、世界中の、とりわけ若い人たちにこの家を見て欲しいと感じています。ここは、住むこと、作ること、そして展示することのできる自由な表現の場です。「異種交配」から新たな文化が生まれると粟津潔は信じ、実践してきました。これを機会に、二人のアーティストの出会い、まずはそれを知り、この家が未来の芸術文化のための制作の場、出会い、交差の場として生まれ変わり、新たな魂を宿す現在進行形のメディアとなれば最高です。その時、粟津邸はその役割を見事に終えることができます。
どうあれ、まずはぜひいらしてください、どなたでも。一世一代の音楽家、小杉武久がイランから50年前に連れて来た陸亀のマランダとお待ちしています。


配置図

写真提供:松本鋭彦