-
所在茨城県牛久市
-
竣工2001年
-
設計堀部安嗣
-
構造木造2階建
-
施工郡司建設
-
延床面積173.14㎡(1階 76.18㎡ / 2階 70.76㎡ / アトリエ 26.20 ㎡)
-
敷地面積284.35㎡
-
竣工時の用途ギャラリー・住宅
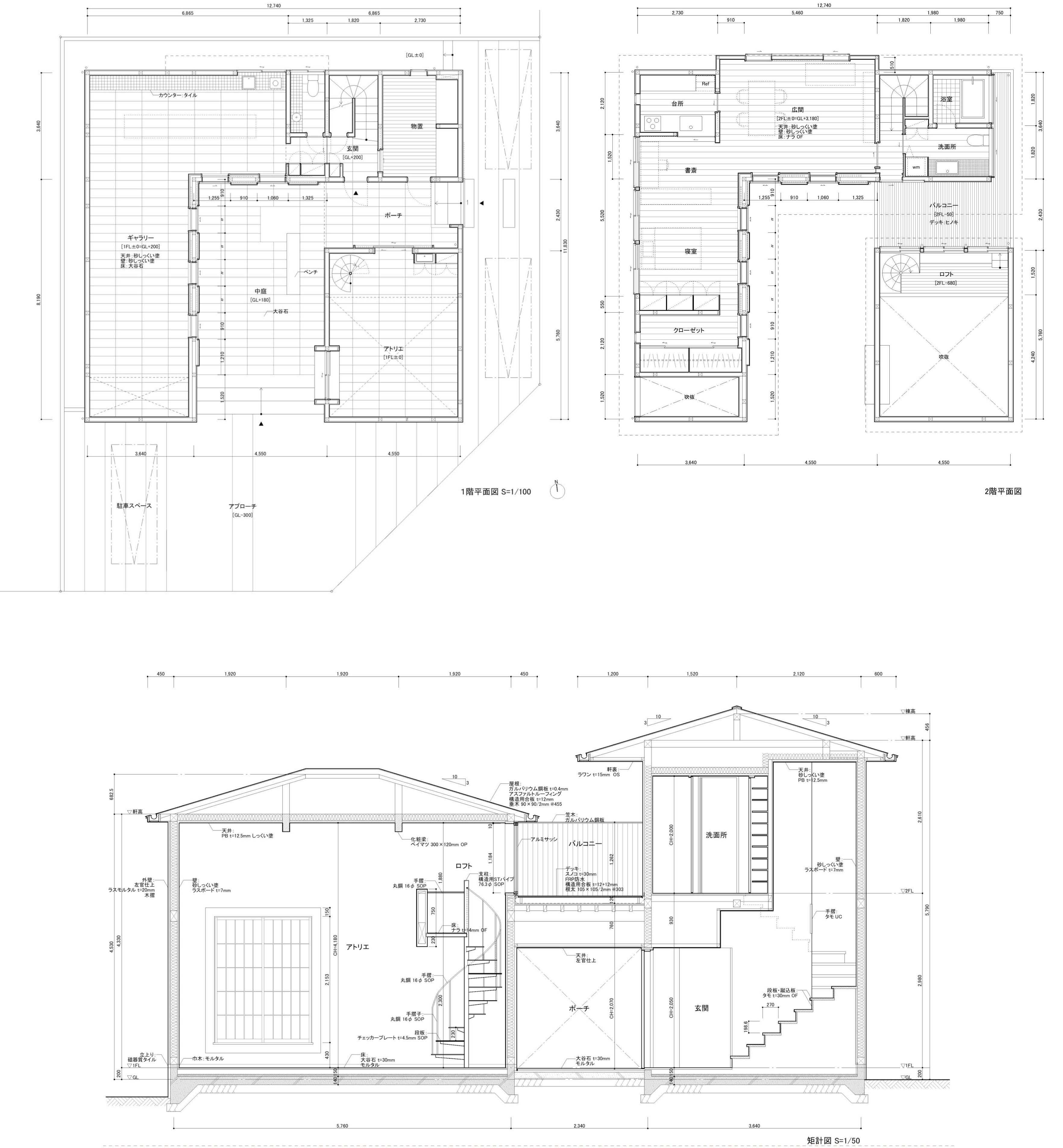
角地の特性を生かし、南から東に抜けられる路地のような中庭をつくり、それを囲むコの字形の平面にギャラリー、アトリエ、住居の三つのスペースを配置している。それぞれは独立しつつも、中庭を介してつながりを得ている。また、普通はギャラリーの窓を最小限に抑えるものだが、ここではギャラリーが街につながることを意図し、中庭側に住居部分と同じリズムで開口部を設けた。その開口部には簾戸を設け、光の具合を調整できるように考えている。大きく街に開いた南側は、道行く人をギャラリーへと誘うパブリックなエントランスとなっている。2階の住居への動線は2通りあり、一つはギャラリーに隣接する玄関の階段を使う動線、もう一つはアトリエの螺旋階段でロフトに上がり、バルコニーから入る動線である。住居の中庭側の開口部には、ガラス戸と簾戸のほかに障子も配置。この設計では開口部のあり方と外部環境の取り込み方のスタディを重ね、その後の設計にもその考え方が活かされている。新建築吉岡賞を受賞した自身の初期代表作である。
竣工から現在までオーナーが変わることなく、オリジナルの状態で丁寧に住み続けられてきたが、継承にあたってギャラリーを他の幅広い用途に転用・活用する可能性も考えらえる。

Photo: Yasushi Horibe
堀部さんの住宅は、おしなべて外観に気を払わない。外に対する自己主張がない。いかにもさばき方が不器用だ。そこに好感を持つ。あくまでも実現したい内部空間の質にすべての要素が向かっている。おもしろい形の住宅をつくるより、充実した内部空間をつくる方が遥かに難易度が高い。実物を見ると、それを追い求めていることが分かる。図面を見ても立面など愛想のないことこの上ない。しかし、私はこれが本当の住宅のつくり方であり、雑誌の紙面を賑わす今時の分かりやすい住宅とは一線を画す、堀部さんの際立った個性なのではないかと思う。

THE JAPAN ARCHITECT 90号『堀部安嗣』、新建築社、2013年6月10日発行
3年前に高校教員を退職してから、この住まいにいる時間が増えました。南東の角地は良好で、冬の陽射しがあれば一日中、外の空気を入れていると、「ここにいたい」「お茶をしたい」という気持ちになります。2階の広間の窓からは中庭の木々や街路樹が見え、向かいのお宅の木々と一体化して奥行きのある庭に変身します。特に秋、中庭に植えたアオハダが黄金色になり、道路沿いの庭には、ヤマボウシ、ナナカマド、エゴノキ、ガマズミなど、赤や黄の実がなる落葉樹があり、楽しいです。そして、紅葉した葉が地上に落ちて絨毯(じゅうたん)のように見えるのがとても美しいのです。
中庭に面してL字型に続く広間と寝室のフローリングが、昔、どこの家でも素足で歩いたようなスタイルで気に入っています。住み慣れてみると、窓の高さや建具類、電気のコンセントの位置にまで、配慮が充分になされていると感じます。北側の水廻りの天井は低く、南側の室内の天井は高いので、階段の踊り場から広間に入ると広さを感じます。2階からテラスを抜けてアトリエに行く屋外空間にも面白さを感じます。
1階のギャラリーには窓から射す陽が柔らかに入ってきます。西側の吹抜けの窓は大きく、これらの光が刻々と変わるにつれ、展示した作品に魔術師がいるかのように感じさせます。そして、「最後の晩餐のテーブル」と堀部(安嗣)さんが命名した長いテーブルの前の椅子に座って、展示している作家も鑑賞者たちも、ゆるやかな時の流れを楽しんでいるように過ごしています。外光のあるギャラリーは少ないものです。作品には陽が直接当たらない設計になっているようで、展示物の劣化を防いでくれます。光の反射をうまく利用しているのかなと思います。壁面は砂漆喰、木、タイル貼りと変化に富んでいます。それが、作品の品位を落とさずに展示できると喜ばれています。
会期中、通りがかった人が足をとめたり、近隣の人たちが憩いの場として寄ってくださるので、画一的なこの住宅地にあって、このギャラリーの存在が何かのメッセージを放っていると思えます。ただ、作品を観るのではなく、住宅を黙って見たり撮影したりする人がいるのは困りものです。一言断ってくださればいいのにと思います。ここはギャラリーであるけれども、プライベートな住居でもあるのですから。でも、この住居のおかげで、建築を志す若い人たちがよく訪ねてきます。中には長く交流が続いている人もいます。この住まいを通して堀部さんがつくってくださった出会いの縁だと思い、その広がりには感謝しています。
家を建てようと思って建築雑誌に目を通し、目を奪われた住居の建築士が堀部さんでした。すぐに連絡をとり、お会いした時、彼は30代になったばかりのようでした。あまりに若いと思った私は、すぐに依頼はせず、どうしようかと考えていました。3年ほど経って改めて、住居と制作するアトリエ、退職後の展示のほかに、コミュニティの場として多目的に使えるギャラリーがほしいと設計をお願いしました。
堀部さんの図面は、私の大学の恩師である剣持昤(けんもち・れい)教授のものと似ているような気がしました。わかりやすい図面で、そこに、ルートの長方形や残像が見えて、また、黄金比の美しさも感じました。それで、全てをお任せしようと決心しました。
当時は時間のゆとりもあったのでしょう。工事が始まると、堀部さんは毎日のように東京から牛久まで通って現場を見てくださいました。施工の細かい部分にまで図面を通して職人さんを指導していらっしゃいました。面倒なことも億劫がらずに指導する姿は勇敢にも思えました。また、浴室のタイルの数や流しの側溝にまで意匠の位置を確認したり、鏡のコーキングの色まで修正させたり、細部まで目を行き届かせていた姿が脳裏に残っています。後に、工務店の方に「堀部さんの図面はわかりやすいので助かりました」と言われました。
工事中、構造体の姿が美しかったことが印象にあります。外壁を仕上げる以前に、プロセスの「美」があるのだと思ったほどでした。住居の完成までにはプロセスがあって、まるで、絵を完成させるがごとく様々な表現があることに気付きました。材料に対しても自ら思うものを探す姿には感銘しました。専門家ではない私の意見も聞きながら、その材料を使う理由を言ってくださいました。ギャラリーの床はカナダ杉から替えて、全面に大谷石を敷き詰める案でした。今、振り返ると、その鋭い感性は正解だったと思います。